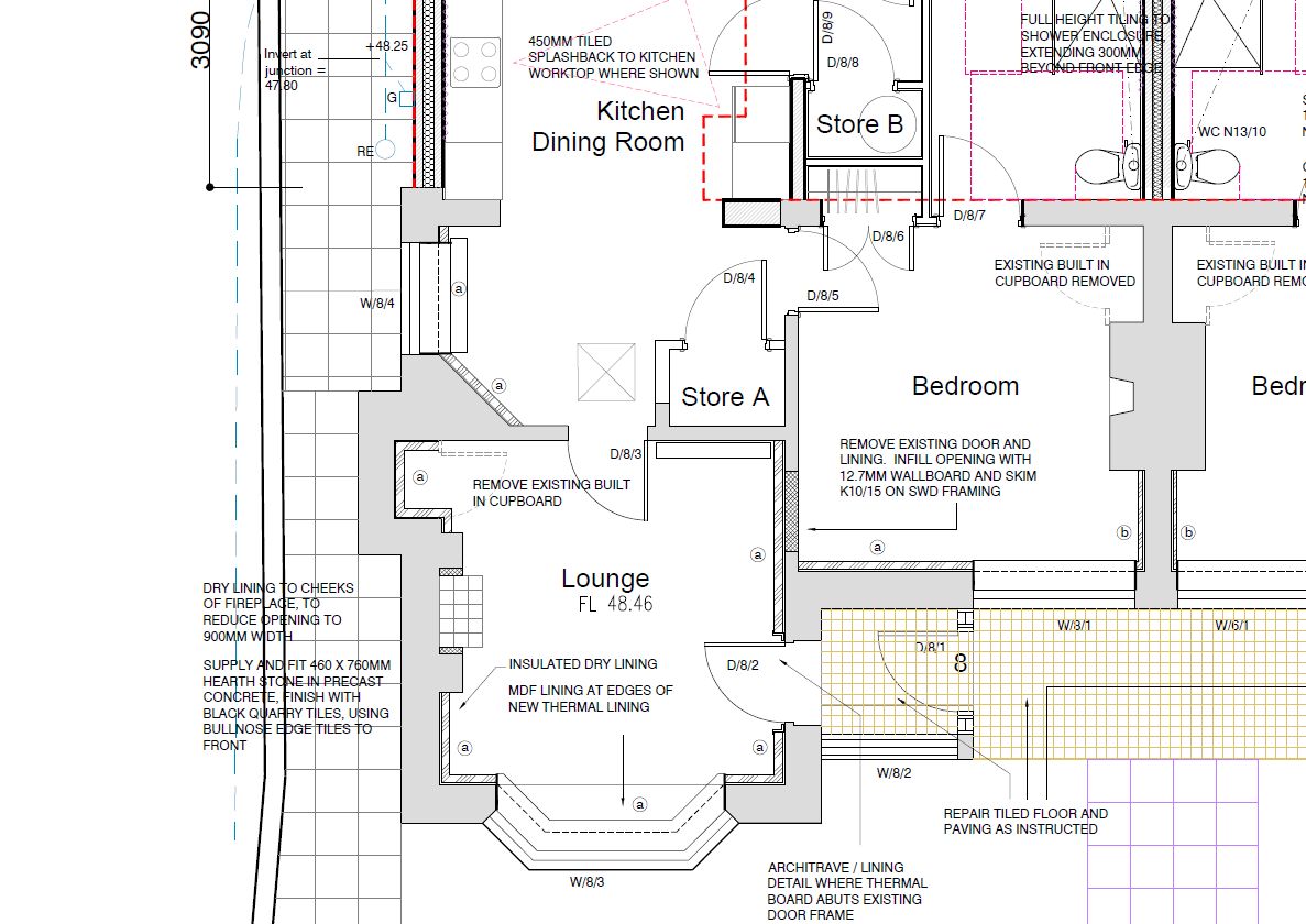
A block of four existing almshouses are being refurbished and extended to a good standard. The building required a considerable amount of additional insulation to meet building regulations. New electric heating has been used for the whole project. In this case a combination of electric storage heaters and electric underfloor heating has been used. All of the heating was designed to be suitable for elderly tenants. The project is due for completion in 2017.
